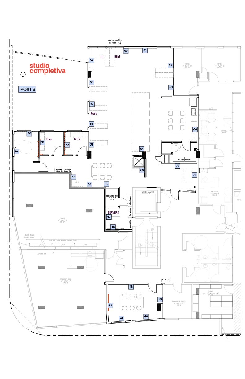
Office Layout and Network Port Numbers¶
Created: 2023-02-07 18:13:08 -0700 Modified: 2023-02-07 18:23:33 -0700

Port numbers listed should match wiring closet in East Office
Created: 2023-02-07 18:13:08 -0700 Modified: 2023-02-07 18:23:33 -0700

Port numbers listed should match wiring closet in East Office